Master Bedroom Designs Master Bedroom Plans 20X20 Carport : Design Tricks To Get The Most Out Of A Floor Plan : Creation of this bedroom design.

Master Bedroom Designs Master Bedroom Plans 20X20 Carport : Design Tricks To Get The Most Out Of A Floor Plan : Creation of this bedroom design.. I just did a quick layout on paper and after making a bedroom of 14 x 15.5, i ended up with a 7 x 14' closet and a 23 x 10' space for the master bath. The low end of this range is for a basic conversion with no new walls, plumbing, or extensive interior work. A lot can be done to a master bedroom simply by changing the style of the space. The term master suite implies that the space is much more than merely a primary bedroom and bath. The nook for the tub is separated from the bedroom with a.

There is a mudroom off the rear porch and laundry and a half bath there as well. A contemporary bedroom provides plenty of opportunities to spice up the decor with touches of personality. Master suite addition plans | rear rendering image of new master suite (brb09) house plan. We added information from each image that we get, including set size and resolution. Two bedrooms share a bath between them and the master bedroom is in the back of the home.

Master Suite App 20x20 Master Bedroom Addition Master Suite Floor Plan Master Bedroom Plans
Master Suite App 20x20 Master Bedroom Addition Master Suite Floor Plan Master Bedroom Plans from i.pinimg.com
With roomsketcher, it's easy to create beautiful master bedroom plans. Master suite addition plans | rear rendering image of new master suite (brb09) house plan. Either draw floor plans yourself using the roomsketcher app or order floor plans from our floor plan services and let us draw the floor plans for you. While you browse master bedroom ideas, take note of what sorts of styles, materials and features stick out to you. 24' x 15' master suite addition floor plan. This 3 bedroom modern home plan has square footage in all the right places! Talk about having your cake and eating it. Get a 4 bed version with house plan 51744hz.

Primary suite and california room.

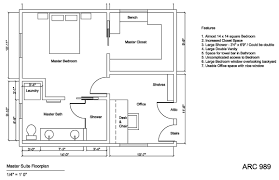
It features an oversized closet and a private bath. The bedroom should paint a calm and relaxing atmosphere so it would do more harm than good overcrowding it with fussy decorations or a host of busy patterns. Two additional family bedrooms and a full bath are found upstairs. Pure white + sage green + bright blue. Welcome back to house plans site, this time i show some galleries about master bedroom and bathroom floor plans. Actually 23 x 24.5 is 563.5 sq. Primary suite and california room. When we designed these master suite plans, we aimed to create a bedroom design that most people would fall in love with. Featuring a beautiful master bedroom, e. Check out the primary bedroom floor plans below for design solutions and ideas. 3 car garage with 3 or 4 bedroom apartment above by trudy foster xz9zz garage apartment… The great room flows into the dining room, which accesses the rear covered porch and then the carport. We added information from each image that we get, including set size and resolution.

We like them, maybe you were too. A contemporary bedroom provides plenty of opportunities to spice up the decor with touches of personality. Remember, you'll be staying a good amount of time in your bedroom so you might as well do the layout right. Get a 4 bed version with house plan 51744hz. When we designed these master suite plans, we aimed to create a bedroom design that most people would fall in love with.

Master Bedroom Floor Plans
Master Bedroom Floor Plans from www.houseplanshelper.com
Kitchen remodeling tips and facts. The complete floor plan of a 20 x 20 master bedroom extension. Home renovation home remodeling kitchen remodeling master bedroom addition master master bedroom addition plans master bedroom plans bedroom ideas home addition plans. Costs of converting a garage into a bedroom. Best 20x20 master bedroom floor plan with pictures. Featuring a beautiful master bedroom, e. Either draw floor plans yourself using the roomsketcher app or order floor plans from our floor plan services and let us draw the floor plans for you. The bedroom should paint a calm and relaxing atmosphere so it would do more harm than good overcrowding it with fussy decorations or a host of busy patterns.

Go for comfy, inviting decor.

There is a mudroom off the rear porch and laundry and a half bath there as well. Creation of this bedroom design. Have it all without breaking the budget. Kitchen remodeling tips and facts. Welcome back to house plans site, this time i show some galleries about master bedroom and bathroom floor plans. Upstairs master bedrooms provide a barrier from the sounds of everyday life—be it a noisy tv in the living room, front door deliveries. Two bedrooms share a bath between them and the master bedroom is in the back of the home. Please click the picture to see the large or full size photo. A carport (also known as a porte cochere) provides a covered space next to the home for one or more vehicles to park or drop off groceries or people without going to the hassle of entering a garage. You'll need to check with your local building code authorities to see what modifications need to be done in terms of building out the room. Check out the primary bedroom floor plans below for design solutions and ideas. While you browse master bedroom ideas, take note of what sorts of styles, materials and features stick out to you. The bedroom should paint a calm and relaxing atmosphere so it would do more harm than good overcrowding it with fussy decorations or a host of busy patterns.

Breaking up the two tones allows for each to shine on their own in the space. A lot can be done to a master bedroom simply by changing the style of the space. Talk about having your cake and eating it. Contrasting colors, brown and white, are on full display in this master bedroom. See more ideas about garage remodel, garage bedroom, converted garage.

Room Addition Costs By The Square Foot 12x12 Vs 20x20
Room Addition Costs By The Square Foot 12x12 Vs 20x20 from www.homelight.com
Best 20x20 master bedroom floor plan with pictures. Two additional family bedrooms and a full bath are found upstairs. Upstairs master bedrooms provide a barrier from the sounds of everyday life—be it a noisy tv in the living room, front door deliveries. See more ideas about master bedroom addition, bedroom addition, bedroom addition plans. A carport in back has room for two cars. Remember, you'll be staying a good amount of time in your bedroom so you might as well do the layout right. 20' x 20' master bedroom extension floor plan. The cost can go from as low as $3,000 to as much as $30,000.

Hopefully, these will help you in creating the master bedroom plan that is suitable for the design of your house.

Master suite addition plans | rear rendering image of new master suite (brb09) house plan. Are you looking for best 20x20 master bedroom floor plan with pictures? Creation of this bedroom design. The nook for the tub is separated from the bedroom with a. The cost can go from as low as $3,000 to as much as $30,000. Remember, you'll be staying a good amount of time in your bedroom so you might as well do the layout right. With roomsketcher, it's easy to create beautiful master bedroom plans. While the overall size of new homes continues to drop, the primary suite area seems to demand more attention than ever. Get a 4 bed version with house plan 51744hz. We like them, maybe you were too. We added information from each image that we get, including set size and resolution. When we designed these master suite plans, we aimed to create a bedroom design that most people would fall in love with. See more ideas about master bedroom addition, bedroom addition, bedroom addition plans.